The Chatham
By Long Built Homes
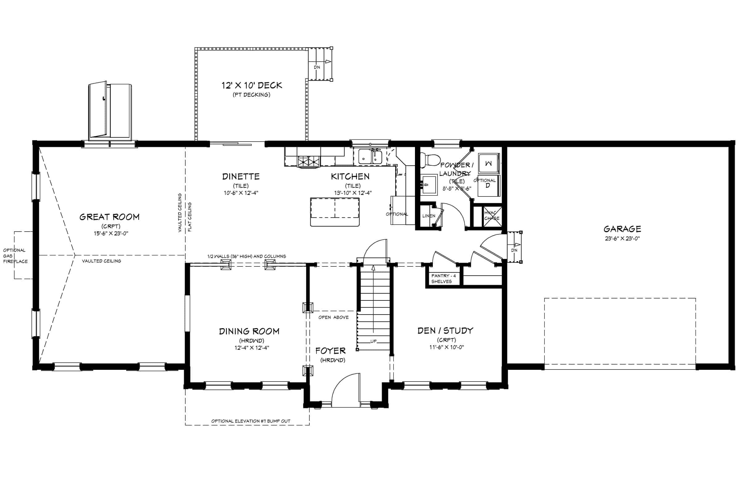
The Most Popular Two Level
3 Bedrooms | 2.5 Baths | 2020 or 2152 SQ. FT.
Open floor plan on first level with a well-designed Chef’s Kitchen w/ Dinette, 14’ X 18’ or 16’ X 24’ Great Room (with or without fireplace), Dining Room w/ crown molding & chair rail, Home Office and Powder Room w/ laundry hookup. The Primary Suite w/ en suite bath and walk-in closet, 2 additional bedrooms and full bath complete the second level.
Speak With a New Home Consultant >
Our ultimate goal is to make another dream come true. Long Built Homes has a commitment to quality, value and customer service that is second to none.
508-995-8240 | Email Us | 158 Charles McCombs Blvd. New Bedford, MA 02745


