The Vineyard
By Long Built Homes
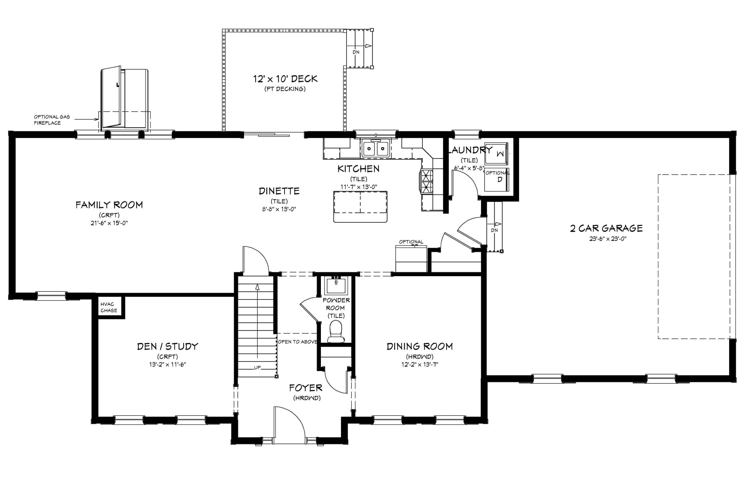
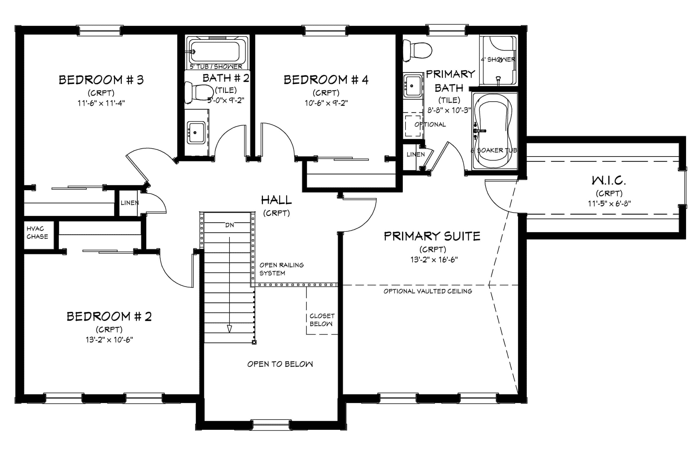
The Efficient
4 Bedrooms | 2.5 Baths | 2350 SQ. FT.
Open floor plan on first level with a well-designed Chef’s Kitchen w/ Dinette, 22’ X 15’ 10″ Great Room (with or without fireplace), Dining Room w/ crown molding and chair rail, Home Office, Powder Room and Laundry Room. The Primary Suite w/en suite bath and walk-in closet, 3 additional bedrooms and full bath complete the second level.
Speak With a New Home Consultant >
Our ultimate goal is to make another dream come true. Long Built Homes has a commitment to quality, value and customer service that is second to none.
508-995-8240 | Email Us | 158 Charles McCombs Blvd. New Bedford, MA 02745


