The Newbury
By Long Built Homes
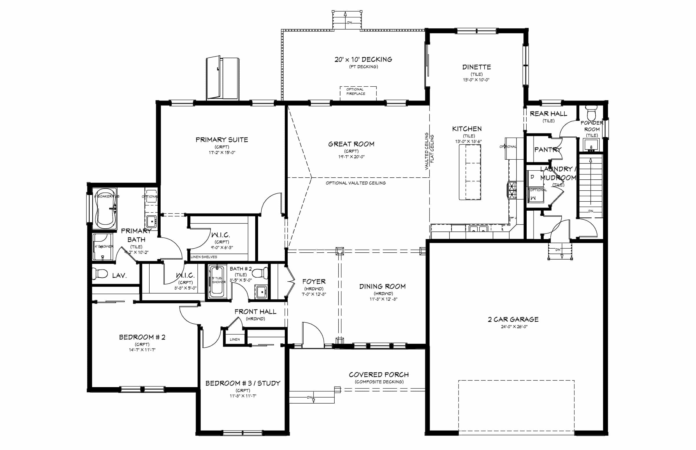
The Newbury
3 Bedrooms | 2.5 Baths | 2330 SQ. FT.
Open floor plan on one level with a well-designed Chef’s Kitchen w/ Dinette, 19’ 6″ X 20’ 8″ Great Room (with or without fireplace), Dining Room w/ crown moulding & chair railing, and laundry/mudroom w/half bath.
The Primary Suite w/ en suite bath and 2 walk-in closets, 2 additional bedrooms (one bedroom could be utilized as a Home Office) and one additional full bath.
Speak With a New Home Consultant >
Our ultimate goal is to make another dream come true. Long Built Homes has a commitment to quality, value and customer service that is second to none.
508-995-8240 | Email Us | 158 Charles McCombs Blvd. New Bedford, MA 02745

